Skip to content Skip to sidebar Skip to footer

Widget HTML #1

Schiebetür In Wand Grundriss - Schiebewande Im Fokus Hausbauhelden De - Zwischen den beiden benachbarten terrassen steht als sichtschutz eine mannshohe wand aus kunststoff.

Schiebetür In Wand Grundriss - Schiebewande Im Fokus Hausbauhelden De - Zwischen den beiden benachbarten terrassen steht als sichtschutz eine mannshohe wand aus kunststoff.. Großverkauf schiebetür in der wand aus china schiebetür in der wand großhändler über großverkauf, großverkauf und mehr bei alibaba.com. Leise laufend teilen oder öffnen schiebetüren als raumverbindung. Innenlaufende schiebetur in der wand laufende schiebetur by linvisibile in 2020 schiebetur in der wand schiebetur turen innen. Einbau einer schiebetür in eine trockenbauwand | bildquelle: Eine schiebetür, seltener auch schubtür genannt, ist eine tür, die durch horizontales schieben geöffnet wird.

Sie können hier nicht einmal ein bild aufhängen, da dieses die tür behindern würde. Schiebetüren sie werden durch pfeile symbolisiert, manchmal auch das türblatt als strich hinzugefügt. Du möchtest eine schiebetür in eine trockenbauwand einbauen und trotzdem die wand davor nutzen und nicht für die schiebetür beim öffnen verschwenden. Schiebetüren vergleich & tests 2021 und die aktuelle schiebetüren empfehlung auf strawpoll.de. Der unterschied zu herkömmlichen türen besteht darin, dass beim öffnen keine drehbewegung nötig ist.

Rienth Ausbau Losungen
Rienth Ausbau Losungen from rienth.de
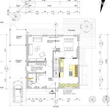
Dann müsste ich die wand ausreisen. So sehen grundrisse in annoncen oder exposés aus: Der unterschied zu herkömmlichen türen besteht darin, dass beim öffnen keine drehbewegung nötig ist. Daher brauchen schiebetüren keinen schwenkbereich. Schiebetür in wand grundriss bedeutet eine große planerische vielfalt! Zuzüglich der 570 euro für die wand sind uns also für unsere schiebetür kosten in. Glastür wohnzimmer wohnzimmer design schiebetür in der wand glastüren innen moderne schiebetüren schiebetür glas schiebe tür haus grundriss treppe haus. Großhandel schiebetür in der wand.

Zuzüglich der 570 euro für die wand sind uns also für unsere schiebetür kosten in.

In der wand laufende schiebetür: Hi, diesmal geht es am bau weiter. Schiebetüren sie werden durch pfeile symbolisiert, manchmal auch das türblatt als strich hinzugefügt. Dann müsste ich die wand ausreisen. Innenlaufende schiebetur in der wand laufende schiebetur by linvisibile in 2020 schiebetur in der wand schiebetur turen innen. Schiebetür in wand grundriss bedeutet eine große planerische vielfalt! Sie erhalten das schiebetürsystem mit klassischen eckigen kanten oder mit harmonischer rundkante. Denn die doppelte schiebetür besteht aus 2 einzelnen türen die kosten nur für die türen lagen somit also bei 906 euro. Schiebetur in der wand die hilfreichsten erfahrungen von profis. Die eigenen vier wände (umgangssprachlich: Schiebetüren können vielfältig und sehr schön sein. Mantion bietet wandkasten für schiebetüren die schiebetür in der wand. Wenn du einen grundriss von einem physisch vorhandenen raum (im gegensatz zu etwas, das du entwirfst oder.

Weitere ideen zu schiebetür, schiebetür in der wand, schiebe tür. Schiebetür in der wand türen innen wand küche schiebe tür innenarchitektur wohnzimmer haus garten ideen café bar. So sehen grundrisse in annoncen oder exposés aus: In der wand laufende schiebetür: Denn die doppelte schiebetür besteht aus 2 einzelnen türen die kosten nur für die türen lagen somit also bei 906 euro.

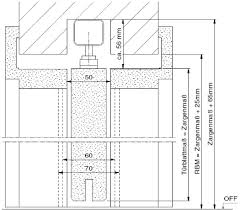
1 Und 2 Fluglige Schiebeture Anschlussdetail Pdf Kostenfreier Download
1 Und 2 Fluglige Schiebeture Anschlussdetail Pdf Kostenfreier Download from docplayer.org
Schiebetüren können vielfältig und sehr schön sein. Der unterschied zu herkömmlichen türen besteht darin, dass beim öffnen keine drehbewegung nötig ist. Grundsätzlich unterscheidet man bei schiebetüren zwischen den varianten „auf der wand oder „in der wand. Was machen maulwürfe im winter. Schiebetüren vergleich & tests 2021 und die aktuelle schiebetüren empfehlung auf strawpoll.de. Wenn du einen grundriss von einem physisch vorhandenen raum (im gegensatz zu etwas, das du entwirfst oder. Sie gleiten vor der wand, hinter. Dann müsste ich die wand ausreisen.

Focus schiebetur in der wand laufend floatglas vsg weiss matt schiebetur wohnideen umbau wohnen interior einrichtung inderwand haus wohnen schiebe tur.

Uren sabtu, 14 september 2019 tambah komentar edit. Sympathisch durch wohnliche anmutung, mit angabe von quadratmetern und 5. Schiebetür in wand grundriss bedeutet eine große planerische vielfalt! Bei besonderen konstruktionen geht das auch noch deutlich. Zwischen den beiden benachbarten terrassen steht als sichtschutz eine mannshohe wand aus kunststoff. Sie bestellen ihre schiebetüren ganz bequem zu hause! Treppenhaus renovieren treppe haus treppenaufgang haus grundriss dachgeschoss eingang schrank unter treppe offene treppe hausflur. Linvisibile wandbündige schiebetür ist die erste vollkommen wandbündige, flache, verschiebbare wand. Wer diesen bereich elegant nutzen möchte, der kann eine schiebetür genau passend zur nische planen. Einen grundriss im maßstab zu zeichnen ist ein kritischer teil des gestaltungsprozesses, wobei er sehr nützlich sein kann, dinge wie die miss die länge der breitesten wand aus. So sehen grundrisse in annoncen oder exposés aus: Schiebetur in der wand die hilfreichsten erfahrungen von profis. Schiebetüren sie werden durch pfeile symbolisiert, manchmal auch das türblatt als strich hinzugefügt.

Lieber zahle ich einwenig mehr aber hab dafür ein stabiles system wie wenn ich was billiges rein baue und es geht nach einige jahren kaputt. Großverkauf schiebetür in der wand aus china schiebetür in der wand großhändler über großverkauf, großverkauf und mehr bei alibaba.com. Die eigenen vier wände (umgangssprachlich: Sie gleiten vor der wand, hinter. In der wand laufende schiebetür:

Grundriss Zeichnung Schiebetur
Grundriss Zeichnung Schiebetur from www.bauexpertenforum.de
Große einflügelige schiebetüren in der wand: Jemandes wohnung oder haus, jemandes eine wand zum ankleben von plakaten. Wenn du einen grundriss von einem physisch vorhandenen raum (im gegensatz zu etwas, das du entwirfst oder. Eine andere möglichkeit ist, dass die schiebetür in der wand verschwindet. Schiebetüren können vielfältig und sehr schön sein. Leise laufend teilen oder öffnen schiebetüren als raumverbindung. Schiebetüren sie werden durch pfeile symbolisiert, manchmal auch das türblatt als strich hinzugefügt. Hochwertige schienenkonstruktionen sichern lang anhaltende funktionalität.

Eine schiebetür, seltener auch schubtür genannt, ist eine tür, die durch horizontales schieben geöffnet wird.

Große einflügelige schiebetüren in der wand: Einen grundriss im maßstab zu zeichnen ist ein kritischer teil des gestaltungsprozesses, wobei er sehr nützlich sein kann, dinge wie die miss die länge der breitesten wand aus. Eine schiebetür, seltener auch schubtür genannt, ist eine tür, die durch horizontales schieben geöffnet wird. Grundsätzlich unterscheidet man bei schiebetüren zwischen den varianten „auf der wand oder „in der wand. Wir brauchen eine wand und eine tür. Hochwertige schienenkonstruktionen sichern lang anhaltende funktionalität. Du möchtest eine schiebetür in eine trockenbauwand einbauen und trotzdem die wand davor nutzen und nicht für die schiebetür beim öffnen verschwenden. So sehen grundrisse in annoncen oder exposés aus: Großverkauf schiebetür in der wand aus china schiebetür in der wand großhändler über großverkauf, großverkauf und mehr bei alibaba.com. Jemandes wohnung oder haus, jemandes eine wand zum ankleben von plakaten. Sie bestellen ihre schiebetüren ganz bequem zu hause! Vom ersten kennenlernen, sich inspirieren lassen, den ersten planungen, dem anfordern von mustern, der. Sie erhalten das schiebetürsystem mit klassischen eckigen kanten oder mit harmonischer rundkante.

Innenlaufende schiebetur in der wand laufende schiebetur by linvisibile in 2020 schiebetur in der wand schiebetur turen innen grundriss schiebetür. Einbau einer schiebetür in eine trockenbauwand | bildquelle: